Артикул:
ТS-1114MR
Подъемник автомобильный электрогидравлический с верхней связью ТS-1114MR
Автомобильный электрогидравлический подъемник с верхней связью грузоподъемностью 4 тонны TS-1114MR съем со стопоров происходит централизованно с помощью рычага расположеного на колонне, что позволяет эффективно и безопасно опускать автомобиль с подъемника. Ограничитель подъёма при достижении максимальной высоты. Предназначен для подъема легковых автомобилей и джипов.
Технические особенности подъемника TS-1114MR
· Сертифицирован для продажи в России и ЕС.
· Свободное перемещение тележки с инструментом, трансмиссионной стойки под подъемником.
· Заезд на подъемник по ровному полу. Синхронизация тросовая верхняя. Удобно убираться – не скапливается грязь возле переездного трапа.
· Большая ширина проезда - 2577 мм, позволяет поднимать широкие автомобили.
· Суммарная прочность двух тросов на разрыв более 10 тонн.
· Тросы подъемника со стальным сердечником. Оцинкованые – не ржавеют. Не растягиваются.
· Винтовая конструкция опор для подхвата автомобиля позволит поднимать не только легковые автомобили, но и рамные внедорожники.
· Качественные штуцеры гидравлической системы. Высокая герметичность – не течет.
· Уплотнительные манжеты гидравлической системы Итальянского производства, а не китайские, поэтому не текут сальники.
· Стойки гидравлического подъемника оборудованы специальными ребрами жесткости для предотвращения деформации колонн.
· Качественные клапаны гидравлического насоса. Не текут и не ломаются.
· Колонны подъемника оборудованы специальными технологическими отверстиями для легкого доступа с возможностью регулировки каретки.
· Высокая чистота обработки внутренних поверхностей гидравлических цилиндров, приводит к увеличению срока службы двухстоечного подъемника.
· Два гидравлических цилиндра, что приводит к увеличению срока службы подъемника. Нагрузка распределяется равномерно на 2цилиндра.
· Наличие запасных частей всегда. Подъемник произведен на крупнейшем заводе в Китае.
· Надежный механизм страховки предотвращает падение автомобиля.
· Высокая стойкость к коррозии. Краска наносится на грунтованную поверхность подъемника.
· Поднимает автомобили с низкой посадкой h-min – 110 мм.
· Двухстоечный подъемник прост в монтаже и обслуживании.
· Фторопластовые ползуны подъемника обладают высокой износостойкостью.
· Двухстоечный подъемник поставляется в жесткой упаковке, которая предотвращает деформацию при транспортировке.
· На внутренней поверхности колонн отсутствуют следы сварки, что приводит к увеличению срока службы ползунов каретки.
· Ролик синхронизации тросового механизма подъемника изготовлен из легированной стали – не деформируется и обладает высокой износостойкостью.
· Клапаны гидравлической системы подъемника закрыты специальными транспортировочными заглушками, которые исключают попадание пыли и грязи в гидравлическую систему.
Комплект поставки ТS-1114
Колонна подъемника – 2 шт.
Насос гидравлический – 1 шт.
Лапы – 4шт.
Трос – 2шт.
Шланг гидравлический – 2 шт.
Насадка на колонну подъемника – 2 шт.
Штифт фиксации лап подъемника – 4 шт.
Декоративные пластиковые заглушки – 4 шт.
Опоры винтовые с резиновыми вкладышами – 4 шт.
Переходники, гайки, болты – 1 компл.
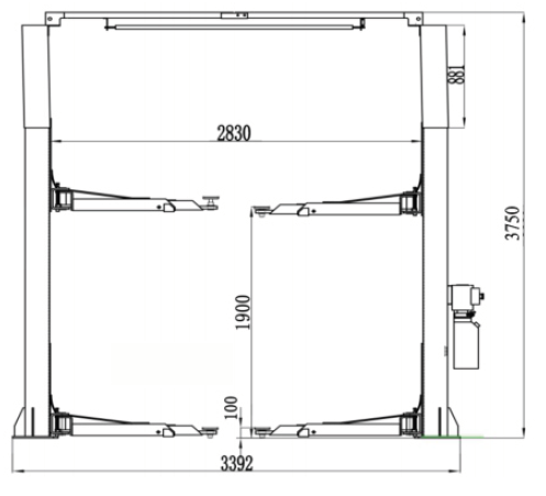
Высота подъема, мм 1825/1940
Высота подхвата min-max, мм 110-250
Высота от пола до ограничительной планки, мм 3559,5
Расстояние между колонами подъемника, мм 2796
Ширина проезда, мм 2577
Габаритная ширина подъемника, мм 3428
Габаритная высота стойки, мм 3601
Длина (min-max) лапа изогнутая, мм 713-1200
Длина (min-max) лапа прямая,мм 828-1200
Расстояние между колонами подъемника, мм. 2796
Количество гидроцилиндров, шт 2
Напряжение В 220/380В
Габариты в упаковке (ДхШхВ), мм 3000х600х800
Масса нетто/брутто, кг 625(615)
Автомобильный электрогидравлический подъемник с верхней связью грузоподъемностью 4 тонны TS-1114MR съем со стопоров происходит централизованно с помощью рычага расположеного на колонне, что позволяет эффективно и безопасно опускать автомобиль с подъемника. Ограничитель подъёма при достижении максимальной высоты. Предназначен для подъема легковых автомобилей и джипов.
Технические особенности подъемника TS-1114MR
· Сертифицирован для продажи в России и ЕС.
· Свободное перемещение тележки с инструментом, трансмиссионной стойки под подъемником.
· Заезд на подъемник по ровному полу. Синхронизация тросовая верхняя. Удобно убираться – не скапливается грязь возле переездного трапа.
· Большая ширина проезда - 2577 мм, позволяет поднимать широкие автомобили.
· Суммарная прочность двух тросов на разрыв более 10 тонн.
· Тросы подъемника со стальным сердечником. Оцинкованые – не ржавеют. Не растягиваются.
· Винтовая конструкция опор для подхвата автомобиля позволит поднимать не только легковые автомобили, но и рамные внедорожники.
· Качественные штуцеры гидравлической системы. Высокая герметичность – не течет.
· Уплотнительные манжеты гидравлической системы Итальянского производства, а не китайские, поэтому не текут сальники.
· Стойки гидравлического подъемника оборудованы специальными ребрами жесткости для предотвращения деформации колонн.
· Качественные клапаны гидравлического насоса. Не текут и не ломаются.
· Колонны подъемника оборудованы специальными технологическими отверстиями для легкого доступа с возможностью регулировки каретки.
· Высокая чистота обработки внутренних поверхностей гидравлических цилиндров, приводит к увеличению срока службы двухстоечного подъемника.
· Два гидравлических цилиндра, что приводит к увеличению срока службы подъемника. Нагрузка распределяется равномерно на 2цилиндра.
· Наличие запасных частей всегда. Подъемник произведен на крупнейшем заводе в Китае.
· Надежный механизм страховки предотвращает падение автомобиля.
· Высокая стойкость к коррозии. Краска наносится на грунтованную поверхность подъемника.
· Поднимает автомобили с низкой посадкой h-min – 110 мм.
· Двухстоечный подъемник прост в монтаже и обслуживании.
· Фторопластовые ползуны подъемника обладают высокой износостойкостью.
· Двухстоечный подъемник поставляется в жесткой упаковке, которая предотвращает деформацию при транспортировке.
· На внутренней поверхности колонн отсутствуют следы сварки, что приводит к увеличению срока службы ползунов каретки.
· Ролик синхронизации тросового механизма подъемника изготовлен из легированной стали – не деформируется и обладает высокой износостойкостью.
· Клапаны гидравлической системы подъемника закрыты специальными транспортировочными заглушками, которые исключают попадание пыли и грязи в гидравлическую систему.
Комплект поставки ТS-1114
Колонна подъемника – 2 шт.
Насос гидравлический – 1 шт.
Лапы – 4шт.
Трос – 2шт.
Шланг гидравлический – 2 шт.
Насадка на колонну подъемника – 2 шт.
Штифт фиксации лап подъемника – 4 шт.
Декоративные пластиковые заглушки – 4 шт.
Опоры винтовые с резиновыми вкладышами – 4 шт.
Переходники, гайки, болты – 1 компл.
Технические характеристики TS-1114MR
Грузоподъемность, кг 4000Высота подъема, мм 1825/1940
Высота подхвата min-max, мм 110-250
Высота от пола до ограничительной планки, мм 3559,5
Расстояние между колонами подъемника, мм 2796
Ширина проезда, мм 2577
Габаритная ширина подъемника, мм 3428
Габаритная высота стойки, мм 3601
Длина (min-max) лапа изогнутая, мм 713-1200
Длина (min-max) лапа прямая,мм 828-1200
Расстояние между колонами подъемника, мм. 2796
Количество гидроцилиндров, шт 2
Напряжение В 220/380В
Габариты в упаковке (ДхШхВ), мм 3000х600х800
Масса нетто/брутто, кг 625(615)
|
Страна производства
|
Китай |
|
Бренд
|
UNITE (Китай) |
|
Масса
|
615 |
|
Мощность, кВт
|
0,75/1,1 |
|
Синхронизация
|
верхняя |
|
Тип подъемника
|
стационарный |
|
Выс.подъем.для подъемников
|
1940 |
|
Мин.подх.для подъемников
|
110 |
|
Грузоподъемность подъемника
|
4000 |
|
Вид подъемника
|
легковой |
|
Тип привода подъемника
|
электрогидравлический |
|
Напряжение питания
|
220/380 |
|
Цвет
|
синий+серый |
|
Разблокировка подъемника
|
ручка-съем |
|
Длина (min-max) лапа изогнутая, мм
|
713-1200 |
|
Длина (min-max) лапа прямая,мм
|
828-1200 |
|
Высота подхвата min-max, мм
|
110-250 |
|
Высота подъема, мм
|
1825/1940 |
|
Высота от пола до ограничительной планки, мм
|
3559,5 |
|
Расстояние между колонами подъемника, мм
|
2796 |
|
Ширина проезда, мм
|
2577 |
|
Габаритная ширина подъемника, мм
|
3428 |
|
Габаритная высота стойки, мм
|
3601 |
|
Габариты в упаковке (ДхШхВ), мм
|
3000х600х800 |
|
Вес брутто, кг
|
625 |
Отзывы
Оставить отзыв
Загрузка отзывов...
Вы можете воспользоваться одним из следующих вариантов оплаты:
- Оплата наличными. Мы принимаем наличные деньги (только рубли) через кассовый фискальный аппарат.
- Безналичный расчет для юридических и частных лиц.
- Оплата банковской картой. Оплата происходит через ПАО СБЕРБАНК с использованием Банковских карт следующих платежных систем: VISA, VISA Electron, Maestro, MasterCard, МИР
Товар можно получить одним из следующих способов:
- Самовывоз товара с пункта выдачи по адресу в вашем городе.
- Курьерская доставка с 9-00 до 23-00 по рабочим дням. Покупатель обязуется разгрузить оборудование собственными силами и в кратчайшие сроки. Простой автомобиля оплачивается отдельно.
- Доставка одной из следующих транспортных компаний: "ПЭК" (Первая Экспедиционная Компания), "ЖДЭ" (ЖелДорЭкспедиция), "ЭНЕРГИЯ", "ДЕЛОВЫЕ ЛИНИИ", "СДЭК" и другие.

